Blog
The 2021 IECC Change You May Have Missed: Air Barrier Verification
Don’t wait for permit reviewers to flag air barrier compliance in your plans.

As more jurisdictions adopt the 2021 International Energy Conservation Code (IECC), project teams are facing new requirements related to air‑barrier verification, blower‑door testing, and building enclosure commissioning.
While a whole building air barrier was required in previous versions of the IECC, third-party code review, verification, and testing were not. In fact, it’s not common practice for many project teams.
This post serves as a guide on how to comply with all air barrier requirements in Section C402.5 Air Leakage—Thermal Envelope of the 2021 IECC. We cover:
- What Changed in the 2021 IECC Air Barriers Section
- Compliance Methods
- Compartmentalization Testing
- Whole Building Blower Door Testing
What Changed in the 2021 IECC Air Barriers Section
The 2021 IECC includes some significant changes to air barrier requirements and testing. Section C402.5 covers air leakage of the thermal envelope and requires whole building or compartmentalization testing in most cases. Some jurisdictions may, alternatively, allow third-party verification and documentation of a continuous air barrier which includes testing.
A building’s enclosure forms the foundation for its energy performance, durability, and ultimately operational costs. A good enclosure requires a clear understanding of the thermal, moisture, fire, and air barriers, especially at complicated architectural details. An investment in high-performance enclosure assemblies is an investment in the long-term sustainability and efficiency of your building.
How to Comply: 2021 IECC Section C402.5
Compliance Methods
As written, the 2021 IECC requires testing to verify the air barrier. IECC interpretations further clarify that the third-party verification pathway is not an alternative to testing. The intent is that all buildings should be tested except in specific building types or instances.
Option 1: Visual Verification Method. Check your local jurisdiction. Where allowed, the visual verification method is almost always the easier choice for a large non-residential commercial building. For a whole building, this may only be permitted in jurisdictions with clear amendments or adjacent code language, such as in ASHRAE 90.1-2022.
It may be the preferred method of compliance for sections of the building that do not fall under testing, such as certain common spaces in a multifamily building where residential areas are required to perform dwelling unit testing. Discuss this section with your local code official to confirm enforcement.
The third-party verification method requires review of the important components prior to close-in, allowing corrections to be carried out and documented.
- Design review: A registered design professional or approved agency reviews the construction documents to ensure the air barrier details are clearly shown and compliant with the code including properly selected air barrier and sealing materials.
- Site observation: An approved party inspects the installation of the continuous air barrier and its components during construction.
- Documentation: Any deficiencies found during either the design review or site observation must be documented, along with details of the corrective measures taken. In most cases, a final building envelope commissioning report is required to be delivered to the building owner and code official, which includes the equivalent of an issues log and corrective actions.
Option 2: Whole Building Testing Method. This may be the standard pathway for large commercial buildings, but passing a whole building blower door test requires careful consideration of air barrier details including installation verification. Project teams should follow the steps above—design review, site observation, and documentation—to successfully pass final whole building testing.
Compartmentalization Testing Method. The 2021 IECC, and most jurisdictions that have adopted it, allow multifamily buildings to meet a unitized blower door testing approach, which can be preferable to the visual verification or whole building testing methods.
Compartmentalization Testing
Many jurisdictions allow multifamily buildings to meet unitized infiltration limits, or compartmentalization. This means a commercial multifamily building can test a portion of the dwelling units to show compliance with this code section, in lieu of testing the building as a whole or even all the dwelling units.
Project teams should confirm with their code officials if compartmentalization testing will cover compliance for the entire multifamily building, or only residential spaces, as is written and interpreted in some areas.
If there was ever a silver bullet when it comes to best practices in multifamily buildings compartmentalization—or air sealing between each unit to prevent infiltration—could be it. It addresses many major issues we see in buildings.
Better Health
- Air sealing is the best strategy to keep pests out and limit their movement within a building.
- Air carries a lot of moisture, so eliminating air leaks helps keep buildings dry and reduces the risks of mold and water damage.
- Compartmentalization prevents contaminated air from garages, basements, attics, and other undesirable sources from entering living spaces.
- It also controls fresh air delivery and reduces air coming from neighboring, and possibly undesirable, spaces
Improves Comfort
- Limiting air transfer from one unit to the next reduces transmission of noise, smoke, and odor between units.
- It also reduces drafts and hot and cold spots.
Wastes Less Energy
- Air sealing lowers heating and cooling bills maintaining a more consistent indoor temperature.
- Compartmentalization can improve the performance of ventilation and mechanical systems by limiting pathways for stack effect—the force of warm air from low to high—to occur in larger buildings.
How to Air Seal Multifamily Units
It’s important to remember to create a complete air barrier around the entire cube of a multifamily unit, not just to the exterior. Any and all penetrations need to be sealed to common space, through party walls to adjacent spaces, and vertically to other spaces above and below each dwelling unit.
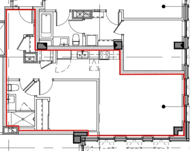
The following red-lined diagrams show dwelling unit compartmentalization air barriers.

This section view of a residential unit shows the compartmentalization air barrier location at the exterior wall, corridor wall, deck below, and bypassing ceiling drywall to the deck above.

This plan view of a residential unit shows the compartmentalization air barrier location along the perimeter wall finished drywall. This includes exterior walls, walls to the corridor, and party walls to other dwelling units.

This is a compartmentalization air barrier of a more complex unit, including important areas of interest called out during the plan review. All of these locations are potential breaks in the compartmentalization air barrier and need to be addressed with details, notes, or other clear guidance allowing proper bidding and execution of the air sealing needs.
SWA’s Multifamily Air Sealing Guides for masonry, wood and steel framed buildings include details and tips for successful compartmentalization and common areas of concern.

This example detail shows a section view of a demising wall, including adjacent dwelling unit living spaces and interstitial ceiling space.
One recommended strategy for a compartmentalization air barrier is to consider deck-to-deck continuity. In this case, a metal framed building has drywall installed, unbroken and sealed, to the deck above with any penetrations through that drywall sealed with an appropriate air barrier material.

This detail provides some notes in an area sometimes missed by installers.
Because the pre-rock (drywall or sheetrock installed prior to the finished drywall on the rest of the wall) is covered by framing and will be hidden by finished drywall, the seams and penetrations are sometimes neglected.
However, in this case, the pre-rock aligns with the perimeter wall drywall, which is part of the compartmentalization air barrier. The later-hidden seams need to be properly sealed before the soffit is finish being drywalled to maintain continuity of the air barrier for the unit.
On SWA Academy, we offer a comprehensive training on multifamily air sealing and compartmentalization: Multifamily Air Sealing Strategies to Pass Unit Infiltration Testing Requirements.
Multifamily Blower Door Test Requirements
Compartmentalization is important for all the reasons outlined above, but it’s also becoming a requirement for many projects in order to meet code or achieve green building certification.
In addition to a pathway for meeting C402.5.2 for Dwelling and Sleeping Unit Enclosure Testing in the code, green building programs such as ENERGY STAR Multifamily New Construction, LEED Homes and Multifamily Midrise, PHIUS, and Enterprise Green Communities all require compartmentalization testing in multifamily buildings.
What is a Blower Door Test
To measure the amount of air leakage in a home, we use a tool called a blower door, which is comprised of a calibrated fan, a mounting system to attach the fan to an exterior door, and a manometer which measures pressure.

To understand the principle behind the blower door test, imagine a large parade balloon. If the balloon is completely air tight, we can pressurize it and shut off the valve, and the balloon will remain inflated indefinitely.
Now imagine the balloon has some small leaks at the seams. To keep it inflated, we need to continuously blow in air to replace the air leaking through the seams. The larger the leaks are, the more air is required. Thus, if we can measure the amount of air we are blowing into the balloon to keep it fully inflated, we can infer how leaky the balloon is.
That’s exactly what a blower door test does: It measures the amount of air needed to keep a house at an elevated positive or negative pressure difference of 50 Pascal (i.e. “inflated”), and we use that measurement to infer how many leaks are present.
Whole Building Blower Door Testing
Commonly called a whole-building blower door test, we use multiple blower doors to create a pressure difference on the exterior surfaces of the entire building. SWA has done blower door testing on buildings up to 35 stories in size, typically for showing compliance with Passive House standards.
The amount of air moving through the fans is recorded in cubic feet per minute (CFM) along with the pressure difference from inside to out in pascals. Just as with the compartmentalization test, since the amount of air moving through the fans is equal to the amount of air moving through the gaps, cracks, and holes of the building’s enclosure, it is used to determine the building’s air tightness.
Taking additional measurements at various pressure differences increases the measurement accuracy and is required in standards that govern infiltration testing. Larger buildings usually test at a higher-pressure difference and express the leakage rate as cubic feet per minute at 75 pascals or CFM75.
Learn about SWA’s approach to whole building blower door testing of some of the largest and tightest buildings in the United States.
Contributors: Andrea Foss, Sustainability Director; Joseph Andracchio, Principal Mechanical Engineer
SWA Air Barrier and Blower Door Testing Services
- Building enclosure design review
- Air barrier site verification
- Material and product research
- Blower door test plan development or review
- Onsite air barrier trades training
- Whole building and compartmentalization testing
